住宅・マンション・土地のご相談は有限会社コルトへ

電話でのお問い合わせは075-583-3685

〒607-8411 京都市山科区御陵大津畑町57-5 Filly京都山科403

物件詳細detail

京都市伏見区鎗屋町(中古一戸建住宅)

◇南西向きで陽当り良好
◇京阪・近鉄の2WAYアクセスで通勤・通学にも便利
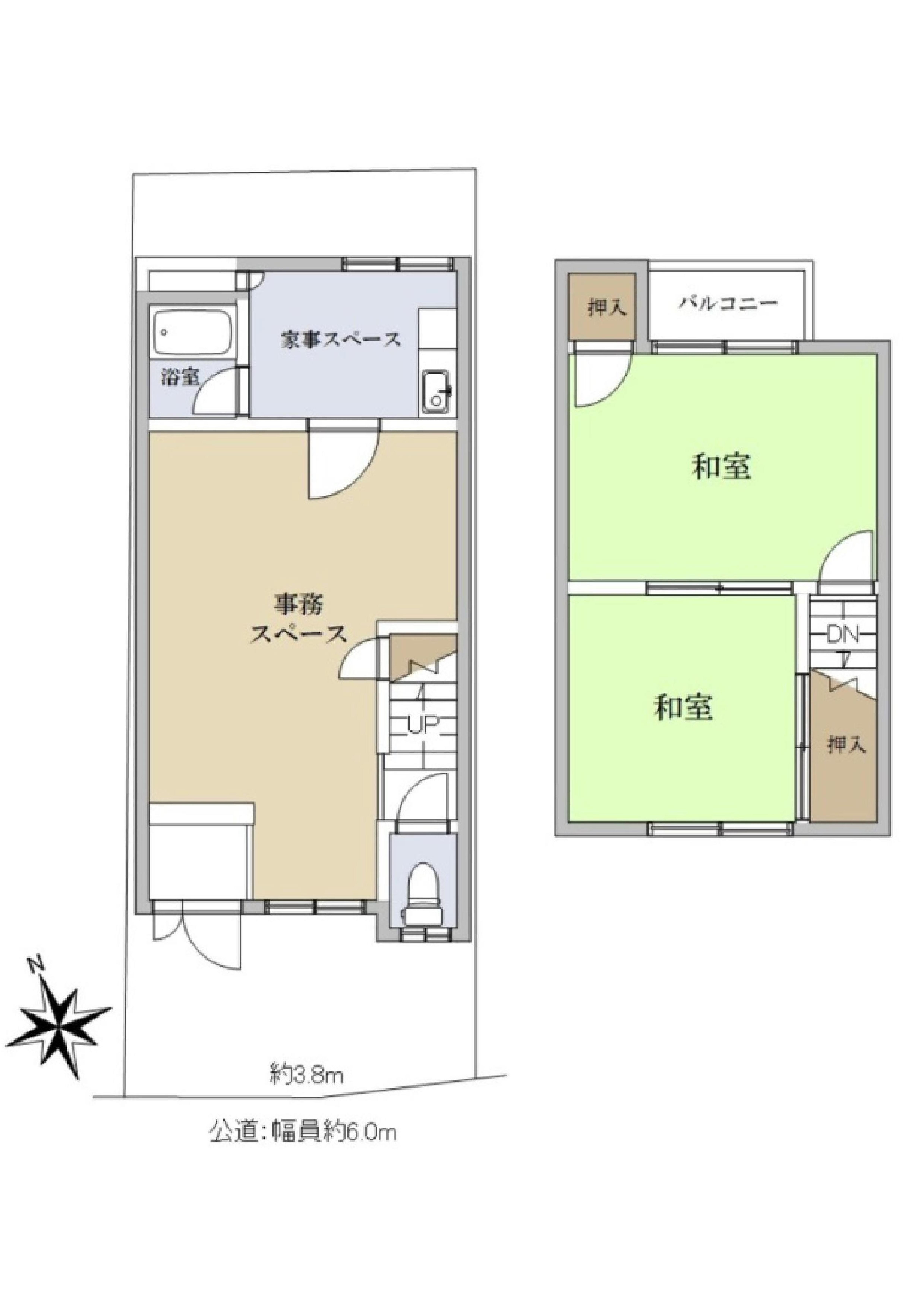
◇事務所としてもご検討いただけます

物件写真・図面


物件概要

価格 価格 1180万円 地目 宅地
所在地 京都市伏見区鎗屋町 都市計画 市街化
最寄駅 京阪本線「墨染」駅 徒歩5分 用途地域 近隣商業地域
土地面積 40.82u(12.34坪) 建ぺい率 80%
建物面積 50.16u(15.17坪) 容積率 200%
構造 木造 2階建 設備 電気・上水・下水・都市ガス  
間取り 2DK 接道 一方 南西側 公道約6m
駐車場 軽 駐車可 現況 空家
築年月 1982年7月 引渡 相談

 SIDE MENU
→過去の成約事例
→賃貸管理物件





公益社団法人 京都府宅地建物取引業協会




公益社団法人 全国宅地建物取引業協会連合会








障がい者居宅介護等事務所